隨著多媒體技術的發展,LED電子顯示屏廣泛應用于商業展示,產生良好的廣告效應,設計優秀的顯示屏支撐結構同時可成為城市建筑物中靚麗的風景線。結合顯示屏的視距要求以及投資地域等特點通常會根據建設地點及建筑物要求進行結構類型設計。LED顯示屏通常采用獨立落地形式或附屬建筑物進行設置(圖1,2)。針對不同顯示屏形式的支撐結構,應準確分析其受力特性選用相應的結構形式,本文將對LED電子顯示屏支撐結構進行分類總結,提出各種支撐結構方案適用的范圍、設計難點以及相應的優化設計方案和構造措施。
圖1落地顯示屏圖
圖2 屋頂顯示屏圖
1、顯示屏支撐結構類型
1.1落地式支撐結構
落地式LED電子顯示屏多設置于城市廣場或重要交通交叉處。分析落地顯示屏支撐結構受力特性可知,支撐結構宜采用空間鋼桁架結構。在基礎上設置4根鋼柱組合形成空間格構柱。上部屏體部分采用多層水平空間桁架結構,既可滿足結構受力要求,又可滿足檢修通道的設置。
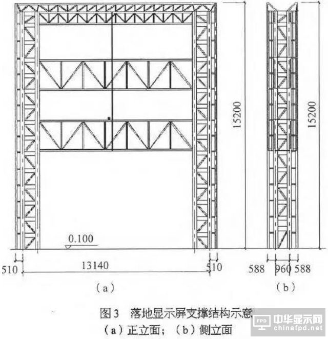
義烏市賓王路LED顯示屏屏體面積屏體有效尺寸為13.4mx8.6 m,屬于典型落地式支撐結構,采用格構柱形成顯示屏支撐結構體系。鋼格構柱4根主肢采用300 mmx300 mmx 10 mm,水平橫材采用200mm×100 mmx6mm、斜腹桿為100 mm×100mm×6mm,結合格構柱內部空間設置檢修上人通道;屏體背側構件采用鋼桁架結構,上弦桿、下弦桿、腹桿均采用100 mmx100 mmx6 mm,上部鋪設6 mm厚鋼板以滿足檢修通道要求。基礎采用獨立混凝土基礎。支撐結構如圖3所示。
1.2壁掛式支撐結構
城市建設密度較大,只有很少區域能夠滿足落地式顯示屏的建設條件。而LED電子顯示屏具有播放動態畫面廣告等優點,城市商業繁華地段需建設大量的LED顯示屏,解決該矛盾的方案就是建設附屬于已有建筑物的顯示屏。
根據建筑物的建設條件、改造條件以及建筑物高度通常將附屬于建筑物的LED顯示屏支撐結構分為壁掛式顯示屏支撐結構和樓頂式顯示屏支撐結構。
壁掛式顯示屏支撐結構多采用單層鋼結構固定于主體結構側面,內部設置檢修通道。中國電信溫州分公司南站大樓LED大屏幕工程顯示屏24.0 mx 13.4m,屬于典型壁掛式顯示屏支撐結構,采用方鋼管160 mmx160 mmx6 mm形成節點體系,槽鋼14a上鋪設6 mm厚壓紋鋼板形成檢修通道,各節點通過6個M16錨栓錨固于主體結構框架柱側。該工程正立面及側立面見圖4。
1.3樓頂式支撐結構
實際使用中壁掛式LED電子顯示屏由于占據較大的建筑物外立面,將會影響到建筑物的采光,因而壁掛式電子顯示屏僅適用于商場等大型商業建筑。建筑高度適中的辦公建筑及民用住宅建筑設置的LED電子顯示屏只能設計在建筑物頂部。此時顯示屏支撐結構體系應歸類為樓頂顯示屏支撐結構。
中國通信服務廣西公司顯示屏支撐結構設置于大樓頂部,充分利用原主體結構剪力墻設置鋼格構體系,梁柱均采用格構構件,形成具有良好受力狀態的空間桁架體系。顯示屏屏體有效尺寸17.5 mx8.0 m,鋼格構柱4根主肢采用100 mmx100 mmx5 mm,水平橫材采用100 mmx100 mmx5 mm、斜腹桿為口60mmx60 mmx5 mm,其中水平橫材與豎材各自組成桁架體系抵抗側向風荷載和地震荷載。節點通過10個M12螺栓錨固于主體結構。該工程正立面如圖5所示。
2、荷載作用
LED電子顯示屏采用落地式、壁掛式或樓頂式均需計算永久荷載、活荷載、風荷載、雪荷載、裹冰荷載、地震荷載等荷載作用(1)。其中永久荷載需計入屏幕自重荷載,活荷載需考慮屏體檢修涉及的檢修荷載。荷載組合系數應符合規范要求。
壁掛式或樓頂式顯示屏其自振周期應結合主體結構進行整體分析,通常情況下可選用主體結構自振周期進行計算(2、3),并分析高振型對樓頂式支撐結構的影響(4)。風荷載的計算應按照圍護結構進行設計分析,對大型支撐結構應根據具體結構形式進行深入分析(5)。地震荷載的計算應綜合考慮雙向水平地震和豎向地震作用,對壁掛式支撐結構尤其要重視罕遇地震下豎向地震作用的影響分析。
此外電子顯示屏內部設置有電子顯示單元,長時間的照明及其他設備的運作均會帶來過多的熱量,內部易出現散熱問題,支撐結構內部布置有大量的電力線路,線路老化等問題也易導致火災發生。顯示屏支撐結構在此類意外作用發生時應有足夠的抵抗能力,不致發生連續性倒塌破壞,需加強關鍵構件支撐節點的設計,提高安全儲備。
3、 結構選型
3.1落地式支撐結構
落地式電子顯示屏支撐結構通過與基礎連接的柱體承擔上部屏體結構的荷載,可按照懸臂梁結構進行分析計算。落地式支撐結構通常采用單柱或雙柱加橫梁式結構,其余類型可結合建筑造型選用合適的支撐結構體系。柱體設計可采用混凝土結構、鋼管結構以及格構鋼柱,橫梁可選用格構梁等鋼結構類型。其基礎選型應根據場地的地質條件確定,并應進行抗壓、抗拔、抗彎和抗傾覆計算。結合懸臂結構的受力特點,落地式支撐結構的關鍵構件為豎向柱體設計,選用安全合理符合工藝要求的截面形式。
結合顯示屏支撐結構的建設周期等特點,選用圓形鋼柱和格構鋼柱截面進行分析,研究相同應力應變情況下鋼材的用量。采用有限元分析軟件建立模型,圓形鋼柱采用彩1000×15,格構鋼柱4根主肢采用300 mm×300mm×10mm,水平橫材采用200mmx100 mmx6mm、斜腹桿為100mx100 mm×6mm,根據懸臂結構受力特點,將上部屏體承受荷載簡化到柱體頂部,根據簡化后的模型對兩種柱體進行有限元分析。分析結果表明,對落地式支撐結構,圓柱式截面及格構式截面均為良好的截面形式。戶外電子顯示屏由于需維修電子顯示元件,因而需設置上人通道,采用格構式柱可充分利用格構空間設置上人通道,不會像圓截面一樣由于設置上人孔洞導致柱根部截面出現薄弱部位。當由于景觀需設置圓形截面時應對上人部位進行局部加固處理。當兩種截面類型均能滿足實用及外觀要求時,應優先采用格構柱。
3.2 壁掛式支撐結構
壁掛式支撐結構通過鋼節點錨固于主體結構物側部,通常可采用框架柱固定節點,當節點間距不能滿足要求時,可采用框架梁作為輔助支點設計位置。橫梁構件固定于支撐點上形成水平向片狀結構體系,該體系承擔顯示屏傳來的風荷載并作為檢修通道承擔檢修荷載,屬于壁掛式支撐結構的主要受力體系。屏體龍骨均布置在水平片狀結構體系上。通常該體系可采用水平放置的桁架,對于節點距離較小的體系可直接采用型鋼作為橫梁,計算模型可采用連續梁方案。水平片狀結構體系是壁掛式支撐結構的關鍵構件。圖6,7研究了兩種水平片狀結構體系的應力應變特點,主體結構軸線間距為7500mm,在樓層中部設置的檢修平臺中間無法設置支撐點,因而該工程最大變形點發生在樓層中部位置。根據變形特點分別采用兩種結構形式進行分析。節點構件均采用160 mmx160 mm×6 mm,單獨型鋼水平支撐結構采用100 mm×l00 mm×5 mm,組合桁架水平支撐結構弦桿采用50 mmx50 mmx4 mm,斜腹桿采用30mmx30 mm×3 mm。#p#分頁標題#e#
根據圖6,7的分析結果可知,當支撐結構體系總質量相同的情況下,采用斜腹桿組合桁架結構比采用直腹桿組合桁架結構變形小。結果表明,水平片狀結構體系采用斜腹桿組合桁架結構可有效降低支撐結構變形,尤其當框架軸線間距較大,中間區域無法連續設置支點時,增加斜腹桿密度可有效降低支撐結構變形。
3.3樓頂式支撐結構
樓頂式支撐結構需結合樓頂原有結構布置進行設計,充分利用原有主體結構體系承擔荷載對優化樓頂式支撐結構體系非常重要。通常可結合建筑物造型采用平面桁架、空間桁架或網架結構等多種結構形式,結構方案靈活多變,可采用有限元分析軟件進行建模分析計算。針對樓頂輕鋼的特點應注意自振周期的特殊性以及鞭梢效應,宜對樓頂式支撐結構與大樓建立整體模型進行有限元分析,研究支撐結構的應力應變特性。
樓頂式支撐結構屬于空間結構體系,其與主體結構的連接方式有多種類型,需根據實際主體結構頂部的情況確定。不同的結構類型受力性能差別很大,只有采用有限元方法分析整體空間結構的受力狀態才能得到符合實際的設計方案。圖8為結合實際工程主體結構突出丁頁面的剪力墻與下部柱頂布置支撐點形成的網架結構,鋼柱和支撐于剪力墻的橫鋼梁采用90 mmx90 mmx5 mm,橫向次鋼梁選用組合雙角鋼2xL40 x4,斜腹桿均采用組合雙角鋼2xL30 x3。采用鋼材總質量為13 900 kg,柱構件根部應力最600習大,其值為133 N/mm2,其余構件應力均不大于 N/mm2,平面內最大變形為3.08 mm,滿足變形要求(6)。圖9采用空間桁架結構體系,構件均選用方鋼管,其中柱和橫鋼梁支撐構件 100 mm×100 mmx5mm,次鋼梁80 mmx80 mmx5m,斜腹桿60mmx60 mmx4 mm,最大應力值135 N/mm2,最大變形值3.08 mm,鋼材總質量14100 kg。
對比兩種結構類型可知,采用相同重量的網架結構體系與空間桁架結構體系的應力和應變相差不多,兩種結構體系效果相近。綜合考慮施工難度及維護方便等因素,樓頂式支撐結構宜選用空間桁架形式。
4、節點分析
采用鋼構件為主要構件的顯示屏支撐結構存在大量的連接節點,節點的準確設計對整體結構的安全性能至關重要。
支撐結構與混凝土基礎連接采用專用預埋件,與主體混凝土結構的連接采用40c-學錨栓和植筋,在與梁體連接處優先采用對穿螺栓。所有節點均不得采用膨脹螺栓。基礎節點設置的錨栓數量應滿足承載力要求,并按照對稱原則進行等間距布置。落地式支撐結構屬于懸臂型結構體系,其柱根部應力較大;壁掛式支撐結構同樣屬于懸臂型結構體系,其節點根部應力較大。針對與基礎及主體結構連接節點的應力分布特點,采用在根部對節點進行處理的方案進行優化設計,可有效改善節點應力并降低鋼材用量。圖10為優化后的兩種根部節點類型。
5、結束語
(1)落地式顯示屏支撐結構屬于懸臂結構,其柱體為關鍵構件,根據應力應變分析結果結合電子顯示屏檢修特點,優先選用格構式截面。
(2)壁掛式顯示屏支撐結構水平片狀結構體系采用斜腹桿組合桁架結構優于直腹桿組合桁架結構,當主體結構軸線較大,中間區域無法設置節點時應增加斜腹桿密度。
(3)樓頂式顯示屏支撐結構可采用網架結構和空間桁架結構體系,兩種結構體系應力應變均衡,從施工難度等方面考慮優先選擇空間桁架體系。
(4)顯示屏支撐結構節點的準確設計對整體結構安全陛能至關重要,針對節點根部受力較大特性設置抗剪鍵或十字加勁肋等構造措施,可有效提高節點的承載能力。
關注我們
公眾號:china_tp
微信名稱:亞威資訊
顯示行業頂級新媒體
掃一掃即可關注我們